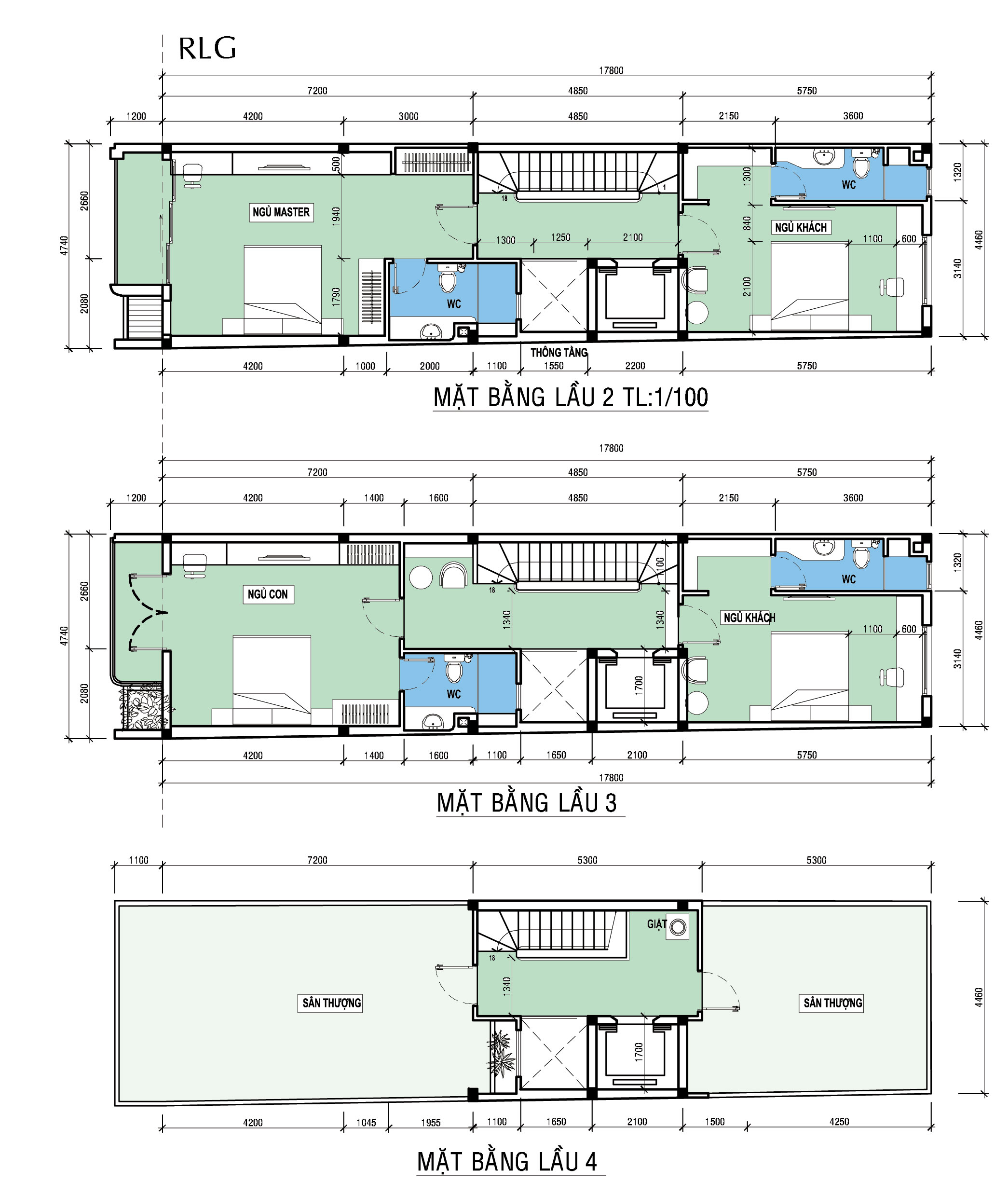
Hình ảnh bàn giao nhà phố 5×20 , khu Tên Lửa, Quận Bình Tân










- Thiết kế & Thi Công: Không Gian Đẹp Bình Tân
- Chủ trì TK: KTS Đàm Hà Khánh
- Thi công: Xí Nghiệp XD số 2





Hình ảnh bàn giao nhà phố 5×20 , khu Tên Lửa, Quận Bình Tân Thiết kế & Thi Công: Không Gian Đẹp Bình Tân Chủ trì TK: KTS Đàm Hà Khánh Thi công: Xí Nghiệp XD số 2














Gửi phản hồi