Đơn vị thiết kế: Marcelo Daglio
Địa điểm xây dựng: Punta del Este, Uruguay
Tổng diện tích: 332m2
Năm hoàn thành: 2010
Ảnh: Trucco – Tricanico
Cộng sự: Verónica González
Nhà xây dựng: Pedro Baubeta
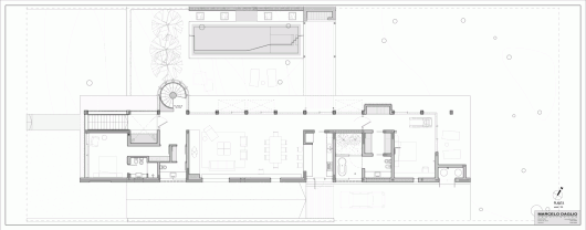
Cách thiết lập của nhà Rovira khác biệt với vị trí truyền thống tại địa điểm xây dựng (nền so với vị trí giữa khu đất). Ngôi nhà được xây nghiêng về phía Nam để có được tầm nhìn đẹp nhất từ các phòng (ở phía Bắc), cũng như giữ lại những cây thông đang có trong khu đất. Thành ra, ngôi nhà mang hình dạng đơn giản mở ra cho một trong hai mặt và đưa trở lại ở mặt còn lại.
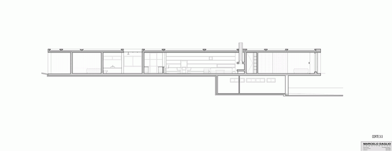
Nhà Rovira được phát triển chủ yếu ở một tầng. Nó được thiết lập như một thanh dọc chứa các không gian khác nhau. Không gian ngoài trời dành cho việc giải trí như hồ bơi và khu vực nướng thức ăn được đặt ở tầng một. Khu nhà ở được thiết lập ở tầng thấp hơn.
Dự án đã tận dụng các khả năng biểu cảm khác nhau của gạch và áp dụng cho toàn bộ dự án. Gạch được tìm thấy trong từng chi tiết của nhà ở, không chỉ trong các bức tường ngang và dọc, mà còn ở ngoài trời và trong nhà. Để làm được như vậy, người ta đã dựng các giàn khoan khác nhau và kết hợp chúng lại với nhau một cách cẩn thận. Như vậy, vật liệu gạch chính là một phần quan trọng tạo nên ngôi nhà đặc biệt này.
Ngôi nhà được đúc hẫng lên trên năm mét, bao gồm cầu thang bằng bê tông cốt thép kết nối tầng dưới với tầng trên. Các thành phần cửa sổ mặt tiền phía Nam đáp ứng yêu cầu trang trí nội thất và ngoại thất. Đặc biệt tầm nhìn sẽ được mở ra từ bên trong. Còn nhìn từ bên ngoài, các cửa sổ là một phần của thiết kế mặt tiền.
Bình An
(Theo archdaily.com)

























Gửi phản hồi