Đơn vị thiết kế: Bernardes + Jacobsen Arquitetura
Địa điểm xây dựng: Bragança Paulista – São Paulo, Brasil
Đơn vị thi công: Paulo Jacobsen e Bernardo Jacobsen
Cộng sự: Jaime Cunha Jr
Đội ngũ thiết kế: Edgar Murata, Ricardo Luna, Valesca Daólio, Débora Silveira Stefanelli
Thiết kế nội thất: Bernardes + Jacobsen Arquitetura
Bản quyền nội thất: Eza Viegas
Diện tích dự án: 1.655m2
Năm hoàn thành: 2010
Ảnh: Leonardo Finotti
Thiết kế cảnh quan: Isabel Duprat Arquitetura Paisagística
Ánh sáng: Studio Ix
Cơ sở vật chất: Pessoa & Zamaro
Kết cấu: Avila Engenharia e Estruturas
Xây dựng: Zapacon Engenharia
Tổng diện tích: 6.790m2
Ngôi nhà lộng lẫy này nằm cách thành phố São Paulo của Brazil một tiếng rưỡi đồng hồ trong một khu đất dành làm nơi nghỉ ngơi của gia đình.
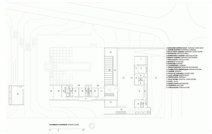
Nhà CT được tạo thành bởi hai khu vuông góc khác nhau. Có thể hình dung ra việc tổ chức không gian và chức năng của ngôi nhà với hai khu: một dành làm lối vào nhà và một cho mục đích giải trí.
Tầng cao nhất, khu lối vào bao gồm phòng người quản gia, nhà để xe và khu vực phục vụ song song với đường phố. Tầng này được ngụy trang khéo léo bởi bức tường đá, cách xa đường phố và giúp cho khu vực có được không gian riêng tư cần thiết.
Lối vào không gian chính phải đi qua một sân lớn có cảnh quan nổi bật. Khu này xây vuông góc với đường phố và việc xây dựng đã dựa vào khoảng lùi của con đường bên cạnh để tạo ra không gian riêng.
“Chiếc hộp lớn” này có hai mặt và mặt dưới được phủ gỗ nhiệt đới màu xám. Các phòng ngủ dọc hành lang được xây đối mặt về phía Bắc và nhìn ra khu vực giải trí.
Từ khu lối vào, một cầu thang nằm ở giữa vườn cung cấp ánh sáng cao độ và dẫn đến tầng thấp hơn, đồng thời dẫn trực tiếp đến phòng sinh hoạt nằm ở khu vực được che phủ gỗ.
Không gian này được thiết kế thông thoáng, có thể nhìn thấy rõ ràng và các phòng ngủ được nhấn mạnh bằng việc trang trí nhiều gỗ hơn, tích hợp với khu vực giải trí bên ngoài, nơi bao gồm một hồ bơi rộng rãi.
Ngoài ra, khu vuông góc cũng mang đầy đủ các chức năng như khu vực bên ngoài, được ngụy trang bằng thảm cỏ và gồm các phần còn lại như: hành lang, phòng thay quần áo, tắm hơi, nhà bếp, khu vực kỹ thuật và phòng ngủ dành khách.
Tổng kết lại, có thể thấy nhà CT được tạo nên bởi hai khu vực riêng biệt phát huy cảnh quan xung quanh thông qua một hình khối chữ nhật duy nhất, đối diện tầm nhìn tươi đẹp và tích hợp đầy đủ chức năng cần thiết cho một ngôi nhà.
Bình An
(Theo archdaily.com)


















Gửi phản hồi