Hãy cùng khám phá ngôi nhà nổi được thiết kế bởi hãng BBVH Architects Rotterdam cho một không gian sống hiện đại không thể tin được.
Câu chuyện về dự án là như thế này: Artist Laura và chủ nhà hàng John đang rất cần một nhà thuyền lớn hơn vì gia đình sắp có thêm thành viên. Họ tìm được chiếc thuyền Spitz của Bỉ vừa được cho ngừng hoạt động sau một thời gian dài phải vận chuyển hàng hóa trên các con sông châu Âu. Họ muốn con thuyền vẫn còn điều hướng như vậy bởi không thể thay thế các động cơ đã cũ, chỉ sắp xếp thêm những thứ cần thiết cho sự an toàn và giấy chứng nhận cho con thuyền.
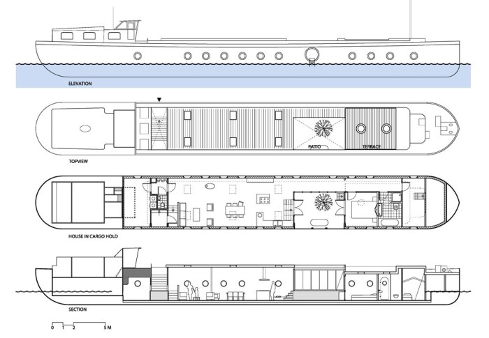
“Chúng tôi xác định mục tiêu chính của dự án là phải làm cho con thuyền tràn ngập ánh sáng và thoáng mát. Hầu hết các nhà thuyền đều gồm những khoang chứa hàng có màu tối và ảm đạm. Để tránh sự ảm đạm này, chúng tôi đã tạo nên một khoảng trống bên trong qua các ô cửa trên nóc bằng đồng quá cỡ 18. Chúng tôi đã sử dụng các ô cửa Pakistan kín nước để giữ lại mạch điều hướng. Lối vào nhà đi qua một tấm vách nhỏ ngay trước buồng lái. Bên cạnh những ô cửa trên nóc chúng tôi không tạo thêm khoảng trống nào trên thân thuyền” – Các kiến trúc sư giải thích.
Nội thất bằng thép trong khoang của ngôi nhà thuyền được cách ly bằng 10cm xốp và được bao phủ bởi gỗ dán sáng màu. Sàn bằng xi măng đúc và bên trên là các đường ống. Tấm vách ngăn ngay lối vào đóng vai trò là vách ngăn cho bồn tắm ngoài trời và một cây lê ở cạnh đó. Sự an toàn của trẻ em trên thuyền thường được đặt lên hàng đầu và vách ngăn này cũng là một giải pháp an toàn cho trẻ tha hồ nô đùa mà không sợ bị rơi xuống biển. Cây lê không phải là thứ ta hay thấy phổ biến trên một con thuyền nhưng trọng lượng và kích thước của nó chẳng là gì so với một nhiệm vụ chuyên chở hàng trăm tấn cát, xi măng và đá mà con thuyền từng chở. Sàn ngoại thất cũng đã được phục hồi và hiện đại hóa. Con thuyền bây giờ đã trở thành một căn hộ nhỏ độc lập xinh xắn. (Ảnh: Luuk Kramer ©)
Bình An
(Theo freshome.com)

























Gửi phản hồi