Đơn vị thiết kế: Design band YOAP
Vị trí xây dựng: Bangbae-dong, Seocho-gu, Seoul, Hàn Quốc
Thi công: Doran Kim, Inkeun Ryu, Hyunbo Shin
Tổng diện tích: 350m2
Năm hoàn thành: 2013
Ảnh: Jae-Wook Cho
Kỹ thuật cơ khí: LINE engineering
Kỹ thuật kết cấu: Qauntum engineering
Xây dựng: Yiinsigak
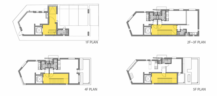
Tòa nhà nằm giới hạn trong một khu vực rất nhỏ, thậm chí nhỏ ngay cả với một căn nhà: rộng 8 mét và dài 20 mét, diện tích mặt bằng là 175m2. 9 căn hộ mini ở ghép đã được xây trong cùng một tòa nhà 5 tầng nhỏ nhắn này. Đây cũng là trường hợp chung cho tất cả những căn nhà cho thuê tại Hàn Quốc khi việc xây dựng phải thu được lợi nhuận và mang lại giá trị kinh tế, đồng thời cũng tạo nên sự dễ chịu và làm hài lòng người thuê nhà.
Mỗi căn hộ được thiết kế với mặt bằng đơn giản nhất có thể để không một người nào từ các nhà khác xâm nhập vào khu vực chật hẹp này. Bên cạnh đó, với chút ít chỗ trống còn sót lại, các nhà thiết kế đã khéo léo chuyển thành “không gian thở” như sân thượng và khu vực sinh hoạt công cộng ở trên mái.
Cửa ra vào mỗi căn hộ được sơn màu đỏ, còn cửa sổ lớn có tầm nhìn xuống các con đường nhỏ nhắn ở Seoul. Các kiến trúc sư đã tận dụng tối đa vị trí của mảnh đất khi thiết kế các cửa sổ ở một mặt có tầm nhìn, giúp kết nối mỗi căn hộ với không gian mở bên ngoài vì ba mặt còn lại của tòa nhà đều đối mặt với đường phố ồn ào.
Đó là lý do chúng ta thấy các cửa sổ nhôm và đường ống được thiết kế nằm ở phía Tây. Một phần mặt tiền này được xây hai lớp để giấu các đường ống và giữ cho bề ngoài tòa nhà trông gọn gàng và sạch sẽ.
Từ mặt tiền màu trắng ở bên trái, một không gian đầy màu sắc rực rỡ được mở ra sau cánh cửa màu đỏ. Đi bộ từ lối vào tòa nhà đến cửa của mỗi căn hộ, mọi người sẽ bất ngờ với từng ngóc ngách của tòa nhà, chẳng hạn như cầu thang vàng nổi bật trên bức tường xanh.
Tên Hàn Quốc của tòa nhà trắng này là YOAP, nghĩa là chỉ quanh đây hoặc gần đó. Tòa nhà nhỏ nhắn này đứng trong góc của khu dân cư cũ tại Bangbae-dong, tạo ra hình ảnh quen thuộc cho khu phố.
Bình An
(Theo archdaily.com)



























Gửi phản hồi