Đơn vị thiết kế: Tectoniques Architects
Địa điểm xây dựng: Lyon, Pháp
Tổng diện tích: 204m2
Năm hoàn thành: 2013
Ảnh: Erick Saillet
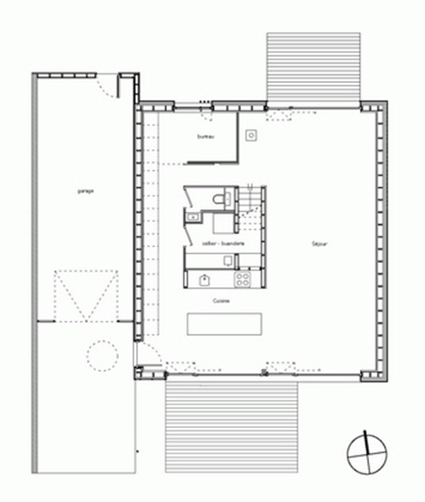
Dự án đầy hiệu quả này là mảnh đất vuông vứt 10 x 11m. Dọc theo phía Tây của tầng trệt là một nhà để xe có vách ốp nhựa giả gỗ sơn đen, phần mái che trước garage được mở rộng kéo dài ra hiên trước. Công trình có bố trí rất thoáng, các không gian được sắp xếp xung quanh hệ thống lõi chức năng của ngôi nhà bao gồm: kho, đường ống, phòng tắm và nhà bếp. Tất cả các phòng được sắp xếp bố trí xung quanh lõi trung tâm này.
Ngôi nhà có tầm nhìn không bị gián đoạn và gợi mở khoảng không gian ra cảnh quan thiên nhiên bên ngoài bằng các vùng phân chia và lớp kính lớn đối mặt nhau. Một dãy các khu vực phụ trợ và nhà kho chạy dọc theo chiều dài bức tường phía Tây. Kết cấu tổng thể của dự án tạo ra một không gian đa năng và mở rộng ra cả phía Nam lẫn phía Bắc khu vườn và hàng hiên. Ngoài ra, không gian giữa các phòng bên trong và khoảng trống bên ngoài được tăng cường lẫn nhau tạo ra khối thống nhất. Do đó, khu vực sinh sống trở nên lớn hơn so với giới hạn không gian của các bức tường.
Mặt tiền nhà hướng về phía Nam và phần lớn được lắp kính nhằm tăng năng lượng mặt trời cho ngôi nhà. Lớp kính này có lớp bảo vệ để kiểm soát ánh nắng mặt trời theo từng mùa. Tầng trên được thiết kế gợi mở ra phía Đông và Nam, trong khi phía Bắc thì đóng kín còn phía Tây chỉ chừa những kẻ hở nhỏ cho khu vệ sinh và nhà tắm.
Do khí hậu địa phương có sự tương phản mạnh mẽ và thay đổi khác biệt giữa nóng và lạnh, cách bố trí của ngôi nhà cho phép chủ nhà vẫn sinh hoạt được ở hàng hiên qua các mùa mà vẫn tránh được các cơn gió không tốt. Về lâu dài, một loạt các yếu tố trung gian và thiết bị ngoại vi có thể được tăng cường để thay đổi không gian theo thời tiết và các mùa, chẳng hạn như các trụ, tán, giàn che…
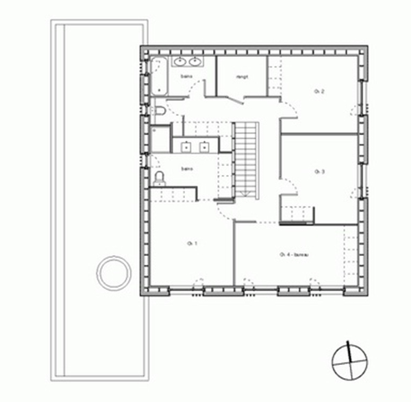
Ở tầng trên, hệ thống được sắp xếp đảo ngược: bắt đầu từ trung tâm và mở ra phòng ngủ. Theo nguyên tắc phân chia khu vực trong thời gian ngày và đêm, tầng trên gồm bốn phòng ngủ và hai phòng tắm. Các phòng ngủ hướng về phía Đông và Nam, trong khi các phòng tắm thì mở ra phía Tây.
Ngoài các khu vực sinh sống được phân chia rõ ràng, ngôi nhà còn có không gian trung gian dành cho nhiều mục đích sử dụng. Đó là trường hợp ở tầng trệt, cách phân vùng mang nhiều bố cục gồm một số phòng không dành cho bất kỳ mục đích cụ thể nào. Những phòng này có thể được cấu hình lại theo thời gian trong ngày, ví dụ như phòng nghiên cứu tại gia – phòng giặt – phòng thực hành máy tính – phòng khách – phòng ngủ – phòng học âm nhạc. Khả năng thích ứng này hoàn toàn thiết thực nhằm đáp ứng cho cả vấn đề riêng tư và các sinh hoạt cộng đồng trong gia đình.
Việc xây dựng ngôi nhà khá là đơn giản. Khung bằng gỗ, được dựng lên trên một tấm sàn bê tông bên dưới và sàn bê tông cho tầng trên, cơ cấu của ngôi nhà là hệ thống mô-đun đúc sẵn. Vật liệu cách nhiệt cho mái nhà là tấm lót dày 40 cm. Tường bao gồm len khoáng sản với sợi gỗ ở bên ngoài, tạo ra một độ dày khoảng 32 cm. Các sợi gỗ giúp làm chậm quá trình làm ấm và làm mát cho ngô nhà. Ở tầng trệt, ba tấm cảm biến đôi bằng kính với một phần cố định và một phần nghiêng chạy dọc theo độ cao trần nhà và khung cảnh xung quanh. Tầm nhìn ra bên ngoài từ các khung cửa cũng được chú ý thiết kế để không bị gián đoạn.
Phòng ngủ ở tầng trên có cửa sổ hơi nghiêng. Trên mặt tiền, phần sơn phủ tường bằng gỗ thông đục lỗ được gia cố để làm tăng gấp đôi 5 x 5 cm tường hòng nâng cao hiệu quả thông gió. Lớp sơn phủ có màu xám bạc nhẹ nhàng và tự nhiên. Bên trong, lớp lót tường được để nguyên thủy, tấm cảm biến ánh sáng màu nhạt được sử dụng thống nhất với tủ, đồ nội thất và các vật dụng lưu trữ khác. Ở những nơi khác, màu trắng của thạch cao làm tăng thêm sự mềm mại và khiến cho ngôi nhà trở nên sáng sủa, rộng rãi hơn.
Về hệ thống sưởi cho ngôi nhà, toàn bộ không gian chủ yếu được cung cấp bởi hệ thống sưởi sàn tầng trệt và tầng trên. Chúng được cung cấp bởi một nồi hơi khí ngưng tụ và tấm pin mặt trời. Hệ thống thông gió đôi lưu lượng được kết nối với một bộ trao đổi nhiệt từ lòng đất chôn ở độ sâu từ 2 đến 2,5m ở phía Bắc của ngôi nhà để cung cấp một nhiệt độ ổn định là 12° C. Khi cần thiết, hệ thống có thể giúp thông gió vào ban đêm. Trong mùa cực lạnh, lò đốt gỗ sẽ tính toán khối lượng tổng thể và ngay lập tức giúp tăng thêm nhiệt độ, đặc biệt cho tầng trên.
Sàn bằng bê tông được đánh bóng bằng sáp cùng hệ thống sưởi ấm sàn luôn tạo ra sự thoải mái về nhiệt cho người sử dụng. Mặc dù cấu trúc ngôi nhà bằng gỗ, nhưng bê tông được lựa chọn xuyên suốt từ tầng trệt cho đến tầng trên, từ phòng ngủ cho đến phòng tắm. Ngoài ra, nước mưa cũng được thu thập trong một bể ngầm. Tất cả các hệ thống này đòi hỏi sự hiểu biết cũng như kiểm soát hoạt động thường xuyên. Điều này thuộc về kỹ thuật và được mua lại theo kinh nghiệm và yêu cầu của người chủ nhằm thể hiện sự quan tâm đến kỹ thuật, đồng thời cũng là cách thay đổi thói quen kỹ thuật của người sử dụng.
Bình An
(Theo archdaily.com)


















Gửi phản hồi