Đơn vị thiết kế: Unemori Architects
Vị trí xây dựng: Meguro, Tokyo, Japan
Diện tích: 67m2
Năm hoàn thành: 2010
Ảnh: Ken Sasajima
Kỹ sư kết cấu: Structured Environment
Nhà thầu: Taishin Construction
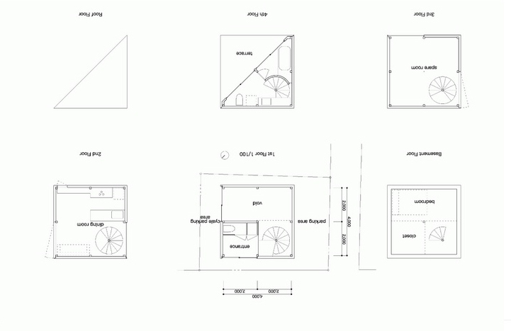
Ngôi nhà diện tích nhỏ của một cặp vợ chồng và các con tọa lạc tại khu vực đông dân cư ở Tokyo. Mặc dù nằm sát với các căn nhà lân cận, kiến trúc sư đã thiết kế ngôi nhà với chủ ý vượt quá không gian chật chội thường thấy trong thành phố. Ngôi nhà có diện tích 4m x 4m, cũng nhỏ như các ngôi nhà ở trung tâm của khu vực rộng 34m2 này. Thiết kế tập trung tạo ra không gian thông thoáng với đầy đủ ánh sáng và gió tràn được vào nhà. Và cũng để tạo ra nhiều không gian sống, kiến trúc sư đã thiết kế ngôi nhà hình một tòa tháp cao 9m. Bên trong ngôi nhà là cấu trúc đơn giản bao gồm bốn tầng lầu và tất cả được nối bằng cầu thang xoắn ốc. Đặc biệt, sàn giữa các tầng được cố ý làm thật mỏng (chỉ dày 70mm) để tạo ra sự kết nối thông suốt toàn bộ không gian của ngôi nhà.
Không gian của xung quanh nhà được thiết kế hợp lý cho ánh sáng và gió đi vào. Trên các bức tường quanh phòng, kiến trúc sư đã thiết kế cửa sổ ở vị trí tốt nhất mà vẫn hòa hợp với môi trường xung quanh. Cửa sổ được làm rất lớn so với căn phòng nhỏ để mỗi khi chủ nhà mở cửa ra hoặc đóng lại sẽ thấy được sự thay đổi lớn trong góc nhìn khung cảnh bên ngoài. Một điều đặc biệt nữa là tầng thứ hai và thứ ba có một chiếc cửa lớn ở mỗi phòng, mỗi khi cửa được mở ra, căn phòng sẽ tràn ngập ánh sáng và gió tự nhiên giống như bạn đang ở ngoài trời. Với cách thiết kế ván sàn mỏng trong mỗi tầng, hay các cửa sổ lớn mở ra tầm nhìn cả thành phố, kiến trúc sư chủ đích vượt quá sự phân khúc không gian, như không gian giữa cầu thang lên và xuống, bên trong và bên ngoài, một căn nhà và thành phố… để mang hình ảnh toàn bộ ngôi nhà vượt xa ra bên ngoài.
Mặt bằng các tầng
Bình An
(Theo archdaily.com)
























Gửi phản hồi