Đơn vị thiết kế: Darkitectura
Vị trí xây dựng: Santiago de Querétaro, Querétaro, Mexico
Nhóm thiết kế: Julio Juárez, Hugo Maldonado, Luis Arteaga
Diện tích: 85 m2
Năm hoàn thành: 2012
Ảnh: Julio Juárez
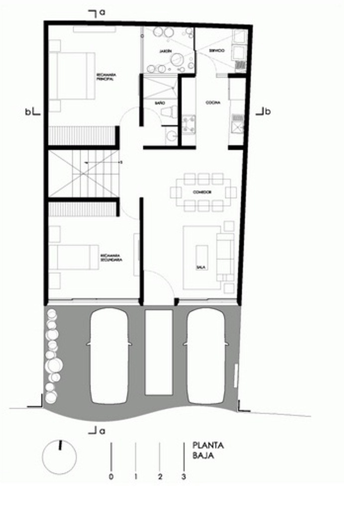
Nhà ở xã hội Xanh là dự án nhà ở giá rẻ trên diện tích 85m2 với mục đích chính là tạo ra những không gian hữu ích mà vẫn mang đầy đủ chức năng với chi phí xây dựng trung bình phù hợp phân khúc nhà ở giá rẻ. Ngôi nhà được xây dựng trên lô đất 8m x 16m ở ngoại ô Queretaro, thành phố lý tưởng phù hợp kiến trúc mở của ngôi nhà. Ngôi nhà được kiến tạo trong một khối hình hộp với trần cao 3,2m, cao hơn khoảng 1m so với chiều cao trần thông thường để tăng cường khoảng không đối lưu.
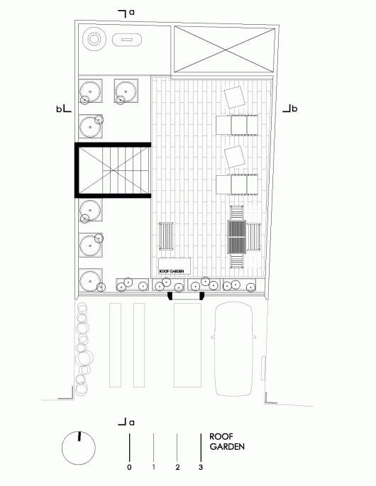
Lần đầu tiên trong một dự án bền vững, thiết kế nhà ở xã hội mang lại ba ý nghĩa quan trọng: thứ nhất là tránh được việc sử dụng máy điều hòa, thứ hai là thiết kế phần mái xanh cung cấp bóng mát cho toàn bộ sàn nhà, và thứ ba là mặt tiền của ngôi nhà sử dụng cửa chớp bảo vệ khỏi ánh sáng mặt trời được gắn từ sàn cho tới trần nhà.
Với sự kết hợp của các cửa chớp đôi kết hợp với cửa trượt nhôm, không gian của ngôi nhà như được mở rộng, thoáng đãng mà vẫn linh hoạt với các hoạt động xã hội và giải trí. Ngoài ra, ngôi nhà còn được xây dựng theo kiểu hoàn toàn truyền thống bằng các vật liệu bình thường như ván sàn, thạch cao, cửa sổ nhôm… mà không cần đến lực lượng lao động có tay nghề điêu luyện. Chính sự phổ biến của vật liệu và dễ dàng trong phương pháp xây mà dự án này mang lại hiệu quả kinh tế cao cho dạng nhà ở xã hội.
Cuối cùng là khoảng sân xanh trước nhà tạo nên toàn bộ không gian 85m2 hoàn chỉnh, có thể được cải tạo như sân tập thể dục, khu vườn gần gũi,… góp phần làm tăng chất lượng cuộc sống cho người sử dụng.
Nhà xã hội Xanh có thể thích hợp với những diện tích đất lớn hơn hoặc nhỏ hơn. Thiết kế mang tính ứng dụng cao này như một sự thay thế mới để phát triển bền vững và đồng bộ cho kiểu nhà xã hội nhàm chán.
Mặt bằng mái
Mặt cắt nhà
Thiết kế tầng trệt
Bình An
(Theo archdaily.com)





















Gửi phản hồi