Hiện trạng dự án:
Hai căn hộ sát cạnh nhau, gần như vuông (1V- 1 vuông), mỗi căn hộ có diện tích 50m2 và cửa sổ đón nắng hướng Đông. Cấu trúc mỗi căn hộ tương đối hợp lý cho một gia đình nhỏ: hai phòng ngủ nhỏ nhắn đón ánh sáng tự nhiên qua cửa sổ mặt tiền; vệ sinh, bếp liên hoàn với sân phơi, giặt và khá thoáng. Tuy nhiên không gian sinh hoạt chung (phòng khách, ăn) khiêm tốn về cả diện tích lẫn ánh sáng tự nhiên cũng dễ được giải thích với cơ cấu và diện tích của căn hộ hiện trạng.
Với một căn hộ thì là như vậy. Nhưng với hai căn hộ liên thông, câu chuyện đã chuyển sang một hướng khác. Chúng tôi có 2V.
Giải pháp cải tạo:
Với những nhu cầu mới, cuộc sống mới thì công việc đầu tiên của thiết kế là cải tạo chính không gian 2V đó. 20m3 tường xây hiện trạng được loại bỏ để trả lại cho căn hộ một mặt bằng trọn vẹn 2V (100m2).
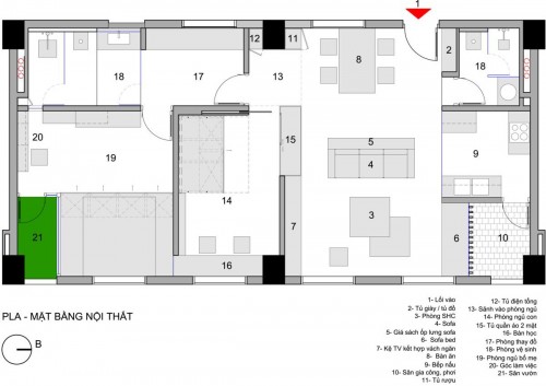
Sau khi phá dỡ, căn hộ mới trở thành một căn hộ tràn đầy ánh nắng với 4 cửa sổ đón nắng hướng Đông. Chính việc kết hợp 2V này thành một căn hộ đã giúp chúng tôi nảy sinh ý tưởng về phân khu chức năng: 1V (50m2) cho sinh hoạt chung (khách, bếp, ăn, wc) và 1V cho sinh hoạt riêng tư (phòng ngủ, wc, thay đồ). Hai khối chức năng này chia đều cho việc sử dụng 4 ô cửa sổ cho việc lấy sáng tự nhiên và thông gió. Các vách ngăn không đơn thuần là tường xây mà được kết hợp với chức năng tủ âm tường, giải quyết nhu cầu sử dụng nhiều trong một không gian hạn chế.
Vùng ánh sáng tự nhiên tốt được thiết lập và ưu tiên cho những chức năng quan trọng: bếp, sinh hoạt chung, ăn, ngủ. Vùng ánh sáng tự nhiên kém hơn sẽ được giành cho khối phụ trợ: thay đồ, vệ sinh…
Các chức năng cần có trong một căn hộ được bố trí dựa vào phân tích công năng theo trục đứng và trục ngang: không gian sinh hoạt chung, không gian phụ trợ (wc, thay đồ, kho), không gian bếp, không gian sân gia công, không gian phòng ngủ bố mẹ, con trai. ối giản các mảng tường xây nhường chỗ cho hệ thống tủ, vách ngăn bằng vật liệu nhẹ.
Việc bố trí đồ được tính toán kỹ lưỡng để phía sau sự thể hiện tối giản là hệ thống công năng đầy đủ, bắt buộc có trong thói quen sống của khách hàng. Chất liệu sử dụng trong dự án được cân nhắc cẩn trọng và thống nhất: gỗ công nghiệp với ganh gỗ to, gạch bê tông trần, kính. Phải nói rằng, dự án thành công là nhờ có sự kết hợp chặt chẽ, tôn trọng nhau giữa nhóm thiết kế và khách hàng. Khách hàng không chỉ ngồi và chờ đến ngày dọn đến nhà mới. Chúng tôi đã làm việc và trao đổi, ra công trường, chọn vật liệu… trong suốt 1,5 tháng thi công. Hơn nữa, việc tỉ mẩn đi chọn từng thứ đồ decor sau khi căn hộ cơ bản đã hoàn thành cũng là một cách thể hiện sự tôn trọng đối với nhóm thiết kế, tôn trọng chính khoản chi phí đầu tư họ đã bỏ ra, giúp chúng tôi đóng gói dự án một cách trọn vẹn.
Hình ảnh nội thất chung cư sau khi thi công:
Anna Heey
(theo kienviet.net)




















Gửi phản hồi